Drakes Lane, Charminster, Dorchester
3 Bed House - Terraced
DT2 9GZ
Key Points
Reception Rooms
1Bedrooms
3Bathrooms
2
Reception Rooms
Bedrooms
Bathrooms
Asking price £337,500
Property Overview
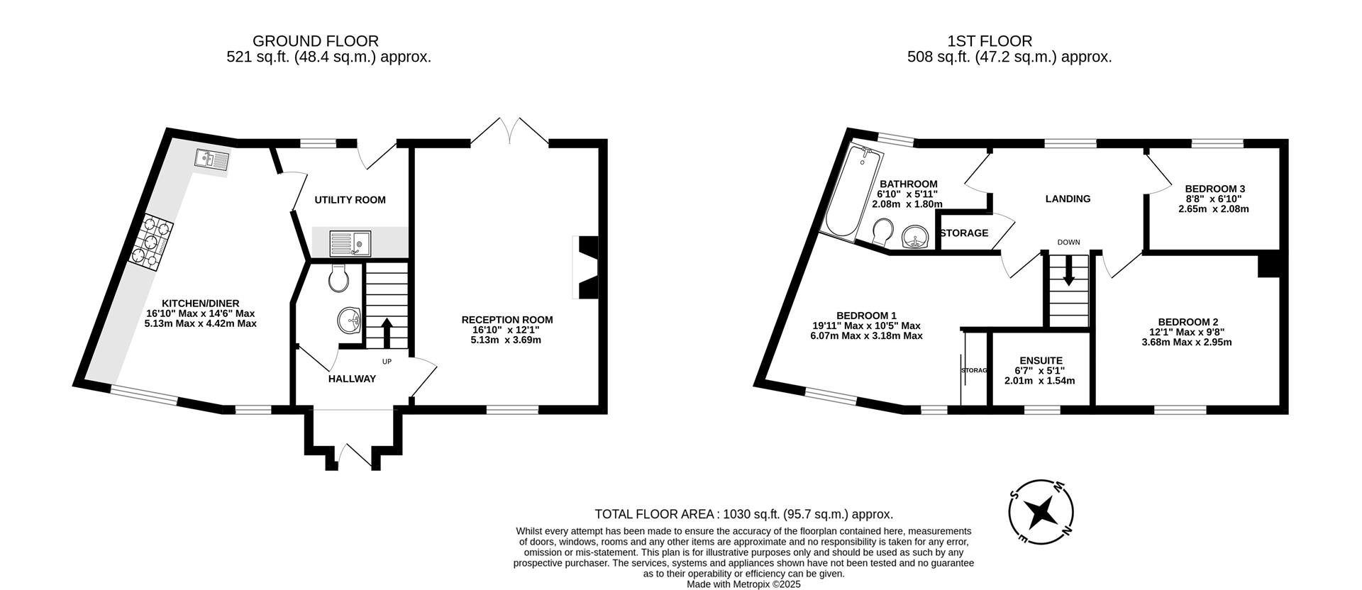
Offered for sale with no forward chain is this attractive double fronted family home, favourably situated within the sought after and picturesque village of Charminster. The property offers accommodation that is presented to a high standard throughout comprising a generous dual aspect sitting room, a modern well-appointed kitchen with separate utility room, three good size bedrooms, a tastefully fitted bathroom, en-suite facilities to the principal bedroom and a ground floor cloakroom. Externally, the property benefits from a low maintenance fully enclosed garden to the rear, a garage and a car port. EPC rating C.
Get In Touch
Property Description
string(8) "33743185"
Situation
Charminster village presents a traditional, old English image with its beautiful cottages and mosaic pavement dating from Roman times, a 12th-century parish church dedicated to St. Mary, and the scenic River Cerne flowing through it. Charminster offers two village pubs, a well-regarded and popular first school, two village halls, a convenience store, which houses a post office, and a Norman Church. Surrounded by rolling countryside, Charminster offers a peaceful rural setting while being conveniently close to the amenities of Dorchester, a five-minute car journey.
Dorchester town is rich in Roman heritage, with sites such as the Dorset County Museum and Maiden Castle offering glimpses into its past. It is also well known for its literary connections to Thomas Hardy and set amongst beautiful rural countryside. Dorchester offers shopping and social facilities with cinemas, museums, leisure centre and weekly market. There are many excellent restaurants, public houses and riverside walks and doctor’s, dentist surgeries and the Dorset County Hospital are close by. There are train links to London Waterloo, Bristol Temple Meads, Weymouth and other coastal towns and villages, and there are regular bus routes to adjoining towns. Brewery Square is set within the heart of Dorchester and is a vibrant area offering further shopping and eating facilities with a central open space hosting several events throughout the year.
Dorchester town is rich in Roman heritage, with sites such as the Dorset County Museum and Maiden Castle offering glimpses into its past. It is also well known for its literary connections to Thomas Hardy and set amongst beautiful rural countryside. Dorchester offers shopping and social facilities with cinemas, museums, leisure centre and weekly market. There are many excellent restaurants, public houses and riverside walks and doctor’s, dentist surgeries and the Dorset County Hospital are close by. There are train links to London Waterloo, Bristol Temple Meads, Weymouth and other coastal towns and villages, and there are regular bus routes to adjoining towns. Brewery Square is set within the heart of Dorchester and is a vibrant area offering further shopping and eating facilities with a central open space hosting several events throughout the year.
Key Features
A short path leads to the property entrance with grassed area and mature plants and shrubs providing an attractive approach. The front door opens onto the hallway offering access to all ground floor rooms including a WC with wash hand basin.
The sitting room is an elegant space with a sunny dual aspect via a front aspect window and French doors opening onto the rear garden. The room is focused around an attractive open fireplace with surround and mantle, creating a warm and welcoming atmosphere. The room is finished with a wooden oak floor.
The stylish kitchen/diner is fitted with a comprehensive range of wall and base level units providing ample storage options with granite work surface over. The room receives plentiful natural light gained via a dual aspect and is finished with wooden oak flooring and inset lighting.
A separate utility room offers an additional work surface and sink and drainer. The boiler, serviced in February 2025, is also located here. A rear door provides access to the garden.
A set of stairs rise to the first floor where the bedrooms and bathroom room are situated. A cupboard offers useful storage space
There are three bedrooms offered in this family home. Bedroom one has fitted wardrobes with sliding doors and a door leads to en-suite facilities with shower cubicle, WC and wash hand basin.
The family bathroom is furnished with a white suite comprising panel enclosed bath, WC and wash hand basin.
Externally there is a fully enclosed low-maintenance garden to the rear of the property. The garden offers a generous patio abutting the property that provides the ideal space for outside furniture and boasts flower bed borders that house a wide variety of mature plants and shrubs. Steps rise to a pedestrian gate that provides access to a single garage and carport.
The sitting room is an elegant space with a sunny dual aspect via a front aspect window and French doors opening onto the rear garden. The room is focused around an attractive open fireplace with surround and mantle, creating a warm and welcoming atmosphere. The room is finished with a wooden oak floor.
The stylish kitchen/diner is fitted with a comprehensive range of wall and base level units providing ample storage options with granite work surface over. The room receives plentiful natural light gained via a dual aspect and is finished with wooden oak flooring and inset lighting.
A separate utility room offers an additional work surface and sink and drainer. The boiler, serviced in February 2025, is also located here. A rear door provides access to the garden.
A set of stairs rise to the first floor where the bedrooms and bathroom room are situated. A cupboard offers useful storage space
There are three bedrooms offered in this family home. Bedroom one has fitted wardrobes with sliding doors and a door leads to en-suite facilities with shower cubicle, WC and wash hand basin.
The family bathroom is furnished with a white suite comprising panel enclosed bath, WC and wash hand basin.
Externally there is a fully enclosed low-maintenance garden to the rear of the property. The garden offers a generous patio abutting the property that provides the ideal space for outside furniture and boasts flower bed borders that house a wide variety of mature plants and shrubs. Steps rise to a pedestrian gate that provides access to a single garage and carport.
Agents Notes
The seller advises all carpets, curtains, blinds, light fittings and shades, wardrobes, fridge/freezer, washing machine, cooker, wine fridge and dishwasher will remain as part of the sale.
There is a shared private drive and shared footpath (with number 2 Drakes Lane) leading to the rear gate.
There is a shared private drive and shared footpath (with number 2 Drakes Lane) leading to the rear gate.
Chancel Repair
The current owner takes out a chancel insurance policy.
Flood Risk
Enquire for up to date details or check the website for the most current rating.
https://check-long-term-flood-risk.service.gov.uk/risk#
https://check-long-term-flood-risk.service.gov.uk/risk#
Services
Mains electricity, water and drainage are connected. Gas fired central heating.
Local Authorities
Dorset Council
County Hall
Colliton Park
Dorchester
Dorset
DT1 1XJ
Tel: 01305 211970
We are advised that the council tax band is D.
County Hall
Colliton Park
Dorchester
Dorset
DT1 1XJ
Tel: 01305 211970
We are advised that the council tax band is D.
Viewings
Strictly by appointment with the sole agents:
Parkers Property Consultants and Valuers
Tel: 01305 340860
Parkers Property Consultants and Valuers
Tel: 01305 340860


