Dorchester Road, Weymouth
5 Bed House - Detached
DT3 5EF
Key Points
Reception Rooms
3Bedrooms
5Bathrooms
4
Reception Rooms
Bedrooms
Bathrooms
Offers over £600,000
Property Overview
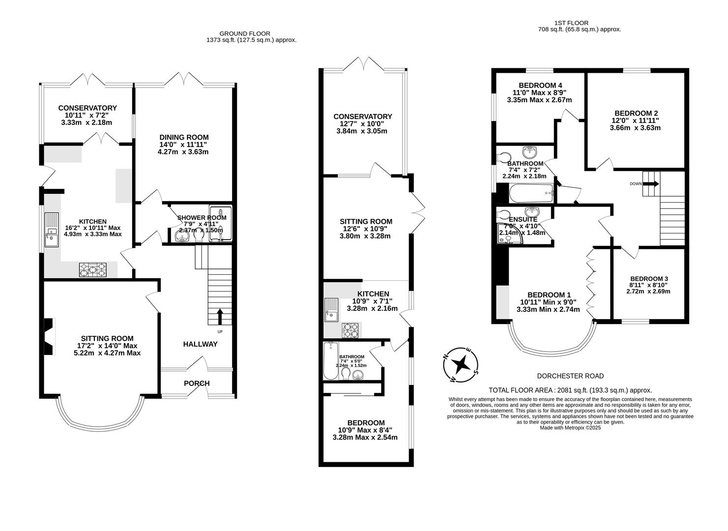
This well-presented, four-bedroom detached family home, in the heart of Weymouth, offers spacious and versatile living including two reception rooms, a kitchen, conservatory, shower room, bathroom and en-suite facilities. A highlight of the home is the separate one-bedroom annexe, perfect for guests and extended family and the generous rear garden. To the front, a large driveway provides ample off-road parking for multiple vehicles. EPC rating for both the main house and annexe is C.
Get In Touch
Property Description
string(8) "33921852"
Situation
Weymouth is a picturesque seaside town located midway along the stunning Jurassic Coast, a UNESCO World Heritage Site, and lies just seven miles south of the historic county town of Dorchester. Renowned for its golden sandy beaches, traditional promenade, and vibrant harbour. In 2012, the town gained recognition as the host of the sailing events for the London Olympics, alongside neighbouring Portland, resulting in improved transport links, including the construction of a relief road and an extensive network of cycle paths. The town offers a wide range of amenities, from independent shops and restaurants to leisure facilities and healthcare services, as well as a selection of schools.
Key Features
Upon entry, you are taken into a porch area, creating the perfect spot to decant outdoor wear before heading into the property’s hallway.
Located to the front of the home, is the sitting room, flooded with natural light via a front aspect bay window and featuring a central wall mounted fire.
The kitchen is fitted with a range of grey ‘shaker style’ wall and base level units with worksurfaces over. Integral appliances include a five-ring gas hob with extractor hood above, an eye-level double oven and dishwasher.
A conservatory to the rear of the property takes advantage of the outlook on to the garden and also provides space and plumbing for two further appliances if desired.
Adjacent to the conservatory is the dining room, enjoying direct access onto the garden and ample space for furniture.
Ground floor accommodation is complete by the shower room with walk-in shower, WC and wash hand basin with vanity storage below.
Upstairs, there are four bedrooms and a family bathroom.
All four bedrooms receive plentiful natural light via either a front, side or rear aspect window, whilst bedroom one further benefits from an en-suite shower room and fitted wardrobes.
The family bathroom is furnished with a panel enclosed bath with shower attachment and part-shower screen, WC and wash hand basin. The room is complete with wood-effect flooring and part-tiled walls.
Located to the front of the home, is the sitting room, flooded with natural light via a front aspect bay window and featuring a central wall mounted fire.
The kitchen is fitted with a range of grey ‘shaker style’ wall and base level units with worksurfaces over. Integral appliances include a five-ring gas hob with extractor hood above, an eye-level double oven and dishwasher.
A conservatory to the rear of the property takes advantage of the outlook on to the garden and also provides space and plumbing for two further appliances if desired.
Adjacent to the conservatory is the dining room, enjoying direct access onto the garden and ample space for furniture.
Ground floor accommodation is complete by the shower room with walk-in shower, WC and wash hand basin with vanity storage below.
Upstairs, there are four bedrooms and a family bathroom.
All four bedrooms receive plentiful natural light via either a front, side or rear aspect window, whilst bedroom one further benefits from an en-suite shower room and fitted wardrobes.
The family bathroom is furnished with a panel enclosed bath with shower attachment and part-shower screen, WC and wash hand basin. The room is complete with wood-effect flooring and part-tiled walls.
Flood Risk
Enquire for up-to-date details or check the website for the most current rating.
https://check-long-term-flood-risk.service.gov.uk/risk#
https://check-long-term-flood-risk.service.gov.uk/risk#
Broadband
At the time of the listing, standard broadband, superfast broadband and ultrafast broadband are available.
Mobile service indoor is listed as limited and likely, depending on the provider and outdoor is likely.
For up-to-date information please visit https://checker.ofcom.org.uk
The seller advises that the annexe is equipped with up-to-date mobile connectivity and Sky services, while the main house benefits from a separate Sky broadband connection. The seller reports that the mobile signal is good.
Mobile service indoor is listed as limited and likely, depending on the provider and outdoor is likely.
For up-to-date information please visit https://checker.ofcom.org.uk
The seller advises that the annexe is equipped with up-to-date mobile connectivity and Sky services, while the main house benefits from a separate Sky broadband connection. The seller reports that the mobile signal is good.
Services
Mains electricity, water and drainage are connected. Gas fired central heating.
The utility supply to the annexe is not separate to the property.
The utility supply to the annexe is not separate to the property.
Local Authorities
Dorset Council
County Hall
Colliton Park
Dorchester
Dorset
DT1 1XJ
We are advised that the council tax band for the main property is E and for the annexe is A.
County Hall
Colliton Park
Dorchester
Dorset
DT1 1XJ
We are advised that the council tax band for the main property is E and for the annexe is A.
Viewings
Strictly by appointment with the sole agents:
Parkers Property Consultants and Valuers
Tel: 01305 340860
Parkers Property Consultants and Valuers
Tel: 01305 340860
Stamp Duty
Stamp duty is likely to be payable on this property dependent upon your circumstance.
Please visit the below website to check this.
https://www.tax.service.gov.uk/calculate-stamp-duty-land-tax/#!/intro
Please visit the below website to check this.
https://www.tax.service.gov.uk/calculate-stamp-duty-land-tax/#!/intro


