Asker Mead, Bridport
3 Bed House - Semi-Detached
DT6 4DA
Key Points
Reception Rooms
2Bedrooms
3Bathrooms
2
Reception Rooms
Bedrooms
Bathrooms
Asking price £479,950
Property Overview
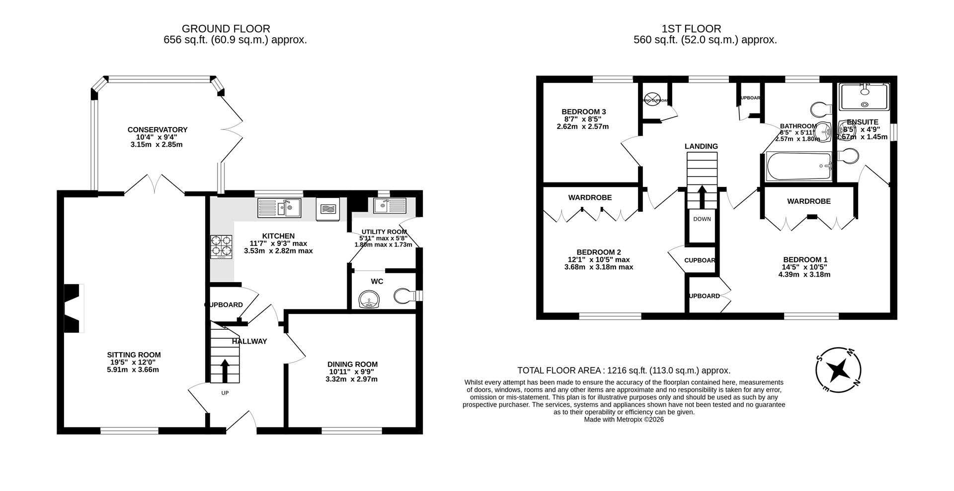
This delightful three-bedroom semi-detached home is built by the highly regarded C.G. Frys. Arranged over two floors, the well-proportioned accommodation includes two welcoming reception rooms, a well-appointed kitchen, utility, ground floor WC, an en-suite to the principal bedroom and a family bathroom. The property also benefits from a garage with a remote-controlled up-and-over door with power and light, and one allocated parking space. To the rear, there is a private garden featuring a versatile studio/office space with power and light. EPC Rating C.
Get In Touch
